67 000 000 HUF
Tatabánya
ID: 3936473 Komárom-Esztergom megye
Category for sale
Type apartment (brick)
Area 100 m2
Rooms 4
-- Original description --
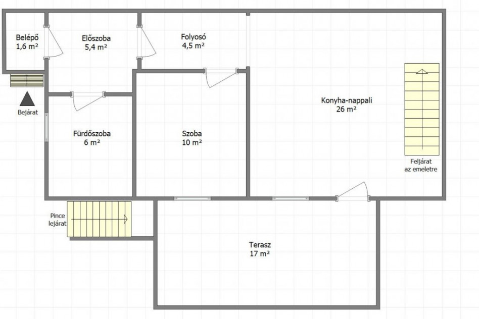
Tatabányán eladó 4 lakásos társasházban 4 szobás lakások!
Jellemzői:
- kétszintes + pince (10 m2) + 17 m2-es terasz;
- teljesen felújított, kívül-belül;
- téglából épült, beton alapra, beton födémmel;
- kívülről 8 cm-es szigetelést kapott;
- földszint 52 m2-es, nagy konyha-nappali, előszoba, fürdőszoba, szoba;
- emelet 42 m2-es, folyosó, 3 szoba, fürdőszoba;
- fűtése radiátoros körön kondenzációs gázkazánnal;
- lakáshoz tartozik egy kb. 300 m2-es telek terület, amely lekerített és füvesítésre előkészített;
- a lakáshoz tartozó telek szélessége kb 13 méter széles;
- gépkocsinak murvázott beállóhely;
- saját villanyórával, vízórával, gázórával rendelkezik;
- nagyméretű emésztő tartozik minden egyes lakáshoz.
Távolságok:
- 10 perc séta a buszmegálló;
- 1,5-2 km az iskola, élelmiszerboltok, orvosi rendelő, stb.
Az ár kulcsrakészen és beköltözhetően értendő!
Egy lakás már elkészült, friss képek feltöltése hamarosan.
Ára: 67 millió Ft
Érdeklődni: Maja Ingatlanközvetítő Irodánál, 06 30 394 9247
majaingatlan.hu
Tatabányán eladó 4 lakásos társasházban 4 szobás lakások!
Jellemzői:
- kétszintes + pince (10 m2) + 17 m2-es terasz;
- teljesen felújított, kívül-belül;
- téglából épült, beton alapra, beton födémmel;
- kívülről 8 cm-es szigetelést kapott;
- földszint 52 m2-es, nagy konyha-nappali, előszoba, fürdőszoba, szoba;
- emelet 42 m2-es, folyosó, 3 szoba, fürdőszoba;
- fűtése radiátoros körön kondenzációs gázkazánnal;
- lakáshoz tartozik egy kb. 300 m2-es telek terület, amely lekerített és füvesítésre előkészített;
- a lakáshoz tartozó telek szélessége kb 13 méter széles;
- gépkocsinak murvázott beállóhely;
- saját villanyórával, vízórával, gázórával rendelkezik;
- nagyméretű emésztő tartozik minden egyes lakáshoz.
Távolságok:
- 10 perc séta a buszmegálló;
- 1,5-2 km az iskola, élelmiszerboltok, orvosi rendelő, stb.
Az ár kulcsrakészen és beköltözhetően értendő!
Egy lakás már elkészült, friss képek feltöltése hamarosan.
Ára: 67 millió Ft
Érdeklődni: Maja Ingatlanközvetítő Irodánál, 06 30 394 9247
majaingatlan.hu
Details
| Price: | 67 000 000 HUF |
| Category: | for sale |
| Type: | apartment (brick) |
| County: | Komárom-Esztergom megye |
| Town: | Tatabánya |
| ZIP code: | 2800 |
| Address: | |
| Floor: | - |
| Area: | 100 m2 |
| Rooms: | 4 |
| Half rooms: | |
| Balcony: | - |
| Heating: | - |
| Windows: | - |
| Energy standard | - |
| Comfort: | - |
| Condition: | new-looking |
| Furnishment: | - |
| Parking: | - |
| View: | - |
| Floors: | 2 |
| Utilities: | |
| Features: | |
| Misc. Extras: | |
| Further extras: | - |
Building
| Year of construction: | 2026 |
| Felújítás éve: | 2026 |
| Floors: | - |
| Number of apartments: | |
| Condition outside: | - |
| Condition inside: | - |
| Structure: | - |
| Roof material: | - |
| Roof Shape: | - |
| Mansard: | - |
| Built-up mansard: | - |
| Mansarda: | - |
| Roof terrace: | - |
| Roof terrace: | - |
| Roof terrace with option to build: | - |
Plot, garden
| Plot size: | 300 m2 |
| Build-up area: | - |
| Garden size: | - |
Check out the area on the map






















