print page 

Fejér megye, Lovasberény 
Hajnal 

ID: 4000541
Property page:
https://realestatehungary.co.hu/property/4000541
Property information
Price: 17 900 000 HUF
Type: vacation home
Category: for sale
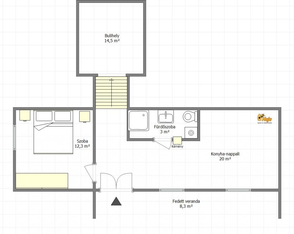
Area: 55 m2
Heating: -
Condition: average
Rooms:
Year of construction: -
Floors: 1
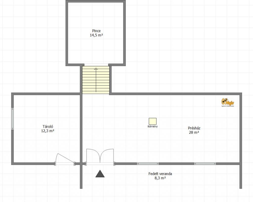
Plot area: 1 333 m2
Garden: -
Balcony: 8 m2
Furnishment: -
Parking: parking slot
View: -
Misc. Extras: -
Description
-- Original description --

Lovasberény szőlőhegyen eladó ház, nyaraló!
Vezetékes víz, villany, emésztő van!

Terület:
- 1331 m2-es, körbekerítve, nagykapuval ellátva;
- kb. 28 méter széles és 48 méter hosszú, téglalap alakú;
- füves és fás, enyhén emelkedik a telek vége;
- kert csap;
- kerti WC;
- kifüggesztéses zártkert, besorolása: gyümölcsös és gazdasági épület;
- megközelíthetősége: kb. 200 méterre az aszfaltos úttól.
Épület:
- présház 28 m2-es, jól alakítható, 8 m2-es veranda;
- mellé épült tároló 12 m2, és egy pince 14,5 m2-es;
- vegyes falazat (tégla, vályog)
- felújítandó állapotú, masszív szerkezettel;
- kéménnyel rendelkezik;
- épületben víz, villany;
- teteje lemez;
- fafödém;
- nagy betonozott emésztő.

Ára: 17,9 millió Ft

Érdeklődni: Kardos Marianna 06 30 394 9247

Advertiser
   
Name: Maja Ingatlan
Contact: Kardos Marianna
Phone: +36-30-394-9247
Web:
 
Pictures