print page 

Fejér megye, Vál 
 

ID: 3919683
Property page:
https://realestatehungary.co.hu/property/3919683
Property information
Price: 25 000 000 HUF
Type: detached house
Category: for sale
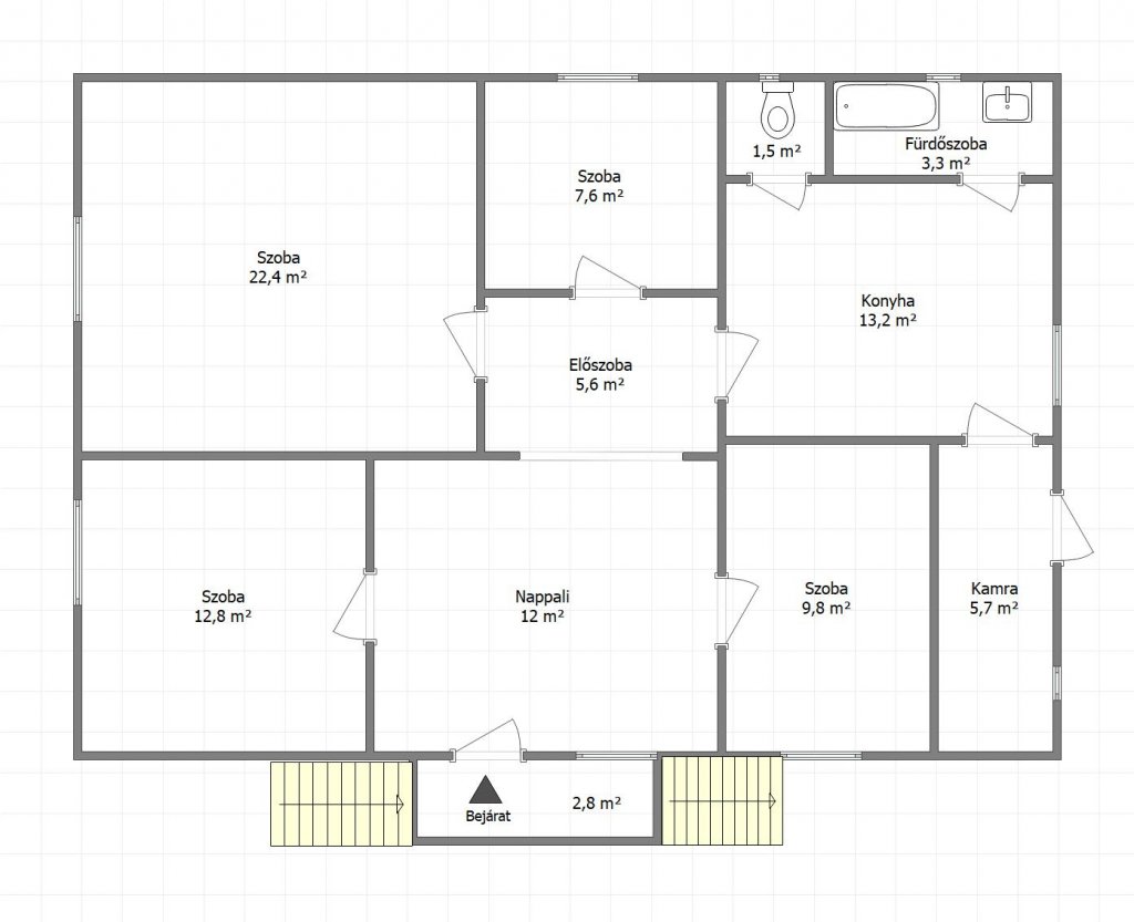
Area: 94 m2
Heating: -
Condition: -
Rooms: 4
Year of construction: -
Floors: -
Plot area: 1 730 m2
Garden: -
Balcony: -
Furnishment: -
Parking: -
View: -
Misc. Extras: -
Description
-- Original description --

Válon 4 szoba+ nappalis családi ház eladó!

Jellemzői:
- tégla falazat, cserép héjazat, betongerendás födém;
- állapota: felújítandó;
- nettó 94 m2-es, 4 szoba + nappalis;
- 2,6 méter belmagasság;
- régi gerébtokos fa nyílászárók;
- régi villanyhálózat, 1 x 32 Amper;
- fűtése a nappaliban lévő 1 db kályha;
- szobákban nincs burkolat, látszik a beton;
Telek:
- 1730 m2-es két szintre tagolódik, közte egy meredek fal;
- fő utcán található, gépkocsival az udvaron és az utcán is tud parkolni;
- sóskúti kőből épült melléképületek, közepes, felújítandó állapotban;
- gyűrűskút az udvaron.

Ajánlom:
- aki kevés pénzből lakható ingatlant szeretne belterületen;
- nagycsaládosoknak;
- átalakítás után kétgenerációnak;
- befektetőknek.
Az ára tükrözi az állapotát, és a ráfordítás költségét.
Az ingatlan nem felel meg hitelfedezetnek!!

Ára: 25.000.000 Ft

Érdeklődni: Kardos Marianna, 06 30 394 9247
Advertiser
   
Name: Maja Ingatlan
Contact: Kardos Marianna
Phone: +36-30-394-9247
Web:
 
Pictures